Vision 2.0: Nye idrætsfaciliteter er på vej i Kolt-Hasselager
Vi planlægger at skabe moderne idrætsfaciliteter, der skal samle vores område her i Kolt-Hasselager – for alle aldre – med bevægelse og fællesskab som omdrejningspunktet.
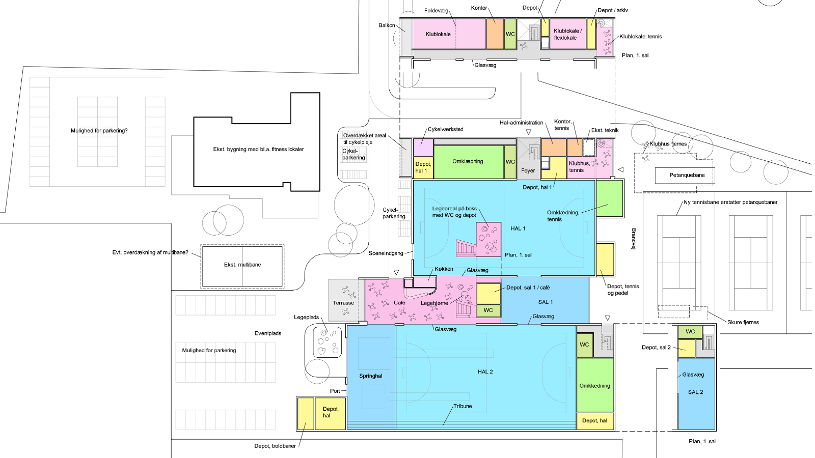
Som en del af “Vision 2.0” arbejder vi aktuelt på arkitektskitser – og vi inddrager jer som lokale borgere og foreninger, så vi sammen kan forme fremtidens haller i Kolt-Hasselager. Det endelige mål er, at vi får nogle tidssvarende rammer for sport, leg og samvær – og et endnu stærkere lokalsamfund.
Vi arbejder med projektet i en arbejdsgruppe under KHIF-Hallen, så vi får ét samlet idrætscenter for lokalområdet. Vi får helt sikkert brug for flere hjælpende hænder i processen, og hvis du har ideer, kommentarer eller gerne vil bidrage på den ene eller anden måde, så tag fat i Kim Kristiansen eller Gitte Tang Kristensen.
Følg med her på siden – og bliv en del af processen!
INITIATIVTAGERE
– KHIF Hallen
– Kolt-Hasselager Idrætsforening (KHIF) og afdelingerne
– Fællesrådet
KONKRETE INVOLVEREDE
– Bavnehøj Skole
– Frivillige i KHIF og afdelingerne
– Medlemmer og borgere i lokalområdet (via Vision 2.0)
ØVRIGE, VI HAR RAKT UD TIL
– Dagtilbuddet i Kolt-Hasselager
– Lokale erhvervsdrivende
ØVRIGE SÆRLIGE INTERESSENTER
Nyheder
| 31.02.2026
Hasselager Hallen på vej mod en ny fremtid
Vi har fået en fantastisk nyhed: Projektet om at udvikle Hasselager Hallen til et aktivt centrum for idræt og socialt fællesskab har netop modtaget 150.000 kr. i støtte fra Lokale- og Anlægsfonden (LOA) til et forberedende projektforløb.
Bevillingen betyder, at vi – i tæt samarbejde mellem Kolt-Hasselager Idrætsforening (KHIF), Aarhus Kommune og Kolt Hasselager Fællesråd – nu kan sætte gang i et kvalificeret projektudviklingsforløb med eksterne rådgivere. Midlerne skal blandt andet bruges på konkrete skitsetegninger og arkitektrådgivning, som skal sikre, at en fremtidig udvikling af hallen matcher behovene i lokalområdet og samtænker den eksisterende KHIF Hallen og Hasselager Hallen meget bedre med fokus på åbenhed, fællesskab og aktivitet på tværs af alder og interesser.
Aarhus Kommune bidrager samtidig med egenfinansiering i projektet med de tidligere tildelte midler, så det hele samtænkes og hjælper os videre i processen.
Næste fase kan udløse op til 10 mio. kr. i støtte
Hasselager Hallen er én af kun 10 idrætshaller på landsplan, der er udvalgt til at modtage støtte gennem LOA’s kampagne “Idrætshaller til tiden”. Som en del af kampagnen udvælges senere tre projekter, der hver kan modtage op til 10 mio. kr. i støtte til realisering. Med den mulighed i sigte ser vi frem til et spændende og ambitiøst forløb.
Det kommende projektudviklingsarbejde skal blandt andet undersøge, hvordan hallens funktioner kan nytænkes, så den i endnu højere grad bliver et samlingspunkt for både idræt og fællesskab i Kolt-Hasselager.
De næste 6 måneder – og hvorfor opbakning betyder noget
I de kommende seks måneder arbejder vi sammen med eksterne rådgivere om at udvikle skitser, afklare behov og undersøge, hvordan Hasselager Hallen bedst kan udvikles som ramme for både idræt og fællesskab. Det bliver en fase med dialog, idéudvikling og kvalificering af projektet, så det står så stærkt som muligt.
Her spiller lokal opbakning en vigtig rolle. Interesse, engagement og deltagelse fra byens borgere, medlemmer, frivillige, foreninger og lokale erhvervsdrivende er med til at vise, at projektet har betydning for lokalområdet.
En bred opbakning styrker både chancen for at blive udvalgt blandt de tre projekter, der kan modtage op til 10 mio. kr. i støtte – og giver under alle omstændigheder et langt bedre udgangspunkt for at skabe et godt og relevant projekt for Kolt-Hasselager.
_______
| 01.06.2025
Vi har fået tilsagn fra Aarhus Kommunes Anlægspulje
Baseret på vores beskrivelser af ønsker om moderne idrætsfaciliteter har vi fået tilsagn om støtte til projektudviklingen fra Aarhus Kommunes Anlægspulje på i alt kr. 143.750,-, fordi vi også selv finansierer med mindst et tilsvarende beløb.
Vi er nu i gang med den første fase, hvor vi får udarbejdet arkitektskitser og inddrager brugere og borgere i processen. Her holder vi workshops og møder for at sikre, at de nye faciliteter bliver skabt i samarbejde med dem, der skal bruge dem.
Projektet er forankret i lokale ønsker og drømme, udviklet i tæt samarbejde med foreninger, institutioner, erhvervsliv og frivillige ildsjæle.
Vores vision og kerneværdier – for det nye halprojekt:
Et sted for alle. Hele livet.
Vores vision for KHIF-Hallerne er: Et sted for alle. Hele livet.
I Kolt-Hasselager bygger vi ikke bare nye idrætsfaciliteter. Vi skaber et fælles samlingspunkt, hvor alle aldersgrupper og interesser kan mødes.
Vi tror på, at bevægelse, fællesskab og livskvalitet hænger tæt sammen. Derfor skaber vi moderne og fleksible rammer, der både favner sport, kultur, leg, samvær og store fælles oplevelser.
Vi bygger for fremtiden – med fokus på bæredygtighed, tilgængelighed og teknologisk udvikling – så vores faciliteter kan vokse og forandre sig sammen med byen og vi borgere.
Vi drømmer om haller, der bliver en levende del af hverdagen i Kolt-Hasselager:
– Et sted, hvor børn vokser op med leg, læring og bevægelse.
– Hvor unge, voksne og ældre finder fællesskab, aktivitet og nye muligheder.
– Hvor hele byen kan samles til alt – fra hverdagsmotion til store oplevelser.
Vores fire kerneværdier
1. ET MØDESTED FOR ALLE
Et sted, hvor vi mødes – uanset hvem vi er.
2. LEG OG BEVÆGELSE
Vi giver plads til aktivt samvær, at lege, at røre sig, at dyrke sport og motion – på alle niveauer.
3. TRIVSEL I HVERDAGEN
Et sted, der bidrager til glæde, sundhed og livskvalitet for os alle sammen – uanset alder.
4. ÅBENHED OG FÆLLESSKAB
Et sted, hvor vi alle sammen føler os velkomne – og kan være en del af noget større.
Støt vores nye halprojekt
Tilsagn fra Aarhus Kommunes Anlægspulje
143.750,-
Baggrunden for det nye halprojekt i Kolt-Hasselager
“Vision 2.0” er vores fælles plan for områdets udvikling, som er udarbejdet i Fællesrådet i Kolt-Hasselager.
Som en vigtig del af denne plan ønsker vi først og fremmest at renovere og udbygge vores haller, så de lever op til nutidens behov for bevægelse, fællesskab og aktivitet for alle aldersgrupper.
Hvorfor ønsker vi et nyt byggeri?
Kort sagt: Vores nuværende idrætsfaciliteter er nedslidte og lever grundlæggende ikke op til nutidens krav.
Med et moderne halbyggeri kan vi i stedet:
– Skabe bedre rammer for sport, leg og fællesskab.
– Tiltrække flere medlemmer til vores lokale foreninger.
– Gøre området endnu mere attraktivt for både nuværende og kommende borgere.
Hvor vil vi hen i fremtiden?
Vi arbejder hen imod at:
– Forbinde de to eksisterende haller bedre, bl.a. med cafeområde og en multihal.
– Fuldt renovere og ombygge den forreste hal, Hasselager Hallen.
– Skabe tidssvarende og fleksible rammer, som kan bruges af mange forskellige brugere – både unge, voksne og ældre.
– Styrke det lokale fællesskab gennem bedre muligheder for aktiviteter og samvær.
Vi glæder os til at tage jer med på rejsen mod nye, moderne idrætsfaciliteter, som hele området kan få glæde af i mange år fremover.
Spørgsmål – til det nye halprojekt:
HVordan kan jeg støtte halprojektet?
Følg med her på siden, hvor vi fremover vil dele alt om det nye halprojekt – og vi får helt sikkert brug for din hjælp.
Arbejdsgruppen bag det nye halprojekt
Det nye halprojekt
Vil du bidrage til, at vi kommer i mål med halprojektet? Følg med her på siden – og har du spørgsmål eller ideer, så tag endelig fat i os i arbejdsgruppen.


